本文目录
1.旗杆一般高多少米2.旗杆的高度是多少米3.国旗旗杆标准高度是多少米,旗杆标准尺寸4.五星红旗旗杆标准高度多少米旗杆一般高多少米摘要
中国第一根国旗杆是1949年开国大典时,该旗杆总高度为22米。1991年5月1日,我国重新修建了国旗杆,旗杆总高度为32.6米。
咨询记录 · 回答于2021-05-05
旗杆一般高多少米
中国第一根国旗杆是1949年开国大典时,该旗杆总高度为22米。1991年5月1日,我国重新修建了国旗杆,旗杆总高度为32.6米。
常见的国旗旗杆高度】
1.如果是中国企业旗杆一般为3支或5支,旗杆中间为中国国旗,两边为企业旗,企业旗一般比国旗旗杆矮半面国旗,中间国旗最高不得超过30米。
2. 如果是中外合资企业,中国旗应与外国旗同高,但在实际施工时中国旗旗杆可略高于外国旗杆一般为50mm。
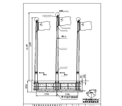
3. 政府及军队一般用一支国旗旗杆,高度也不能超过30米,一般高度为12米~28.8米。
4. 广场旗杆一般高度为18米~29.8米。
5. 体育馆旗杆一般高度为9米~15米。
6. 酒店旗杆既要豪华又要显得庄重一般高度为12米~19.8米之间,一般用5支,中间为中国国旗,两边为其它国家国旗或酒店自己旗帜。
7. 学校旗杆一般采用一支旗杆,升中国国旗,高度为12米~15.8米之间。

不同场所适用的旗杆高度是不一样的。
事业单位旗杆:12米-30米。
企业旗杆:10米-16米。
学校旗杆:8米-15米。
广场旗杆一般高度为18米~29.8米。
体育馆旗杆一般高度为9米~15米。
酒店旗杆既要豪华又要显得庄重一般高度为12米~19.8米之间,一般用5支,中间为中国升旗,两边为其它钢结构升旗或酒店自己旗帜。

旗杆原理及配置:
电动旗杆原理:电动旗杆内部安装了一套机电一体化的旗杆驱动机芯。工作过程中,旗杆驱动机芯代替人力将旗帜升至旗杆顶端指定位置。
360度顺风球冠装置:旗杆这一技术的运用旨在使得红旗在顺风逆风情况下都不至于使得红旗折叠甚至打结,此装置设计精度高转动灵活,使用寿命长。
国旗旗杆标准高度是多少米,旗杆标准尺寸中国第一根国旗杆是1949年开国大典时,毛泽东主席升旗时所用的旗杆,该旗杆总高度为22米。1991年5月1日,我国重新修建了国旗杆,旗杆总高度为32.6米。
现在中国国旗旗杆标准高度是12~28.8米。根据不同条件下分为
1.如果是中国企业旗杆一般为3支或5支,旗杆中间为中国国旗,两边为企业旗,企业旗一般比国旗旗杆矮半面国旗,中间国旗最高不得超过30米。
2. 如果是中外合资企业,中国旗应与外国旗同高,但在实际施工时中国旗旗杆可略高于外国旗杆一般为50mm。
3. 政府及军队一般用一支国旗旗杆,高度也不能超过30米,一般高度为12米~28.8米。
4. 广场旗杆一般高度为18米~29.8米。
5. 体育馆旗杆一般高度为9米~15米。
6. 酒店旗杆既要豪华又要显得庄重一般高度为12米~19.8米之间,一般用5支,中间为中国国旗,两边为其它国家国旗或酒店自己旗帜。
7. 学校旗杆一般采用一支旗杆,升中国国旗,高度为12米~15.8米之间。

国旗
望采纳。
五星红旗旗杆标准高度多少米五星旗旗杆标准高度是12-28.8米。
常见的国旗旗杆高度如下:
1、中国企业旗杆一般为3支或5支,旗杆中间为中国国旗,两边为企业旗,企业旗一般比国旗旗杆矮半面国旗,中间国旗最高不得超过30米。
2、对于中外合资企业,中国旗应与外国旗同高,但在实际施工时中国旗旗杆可略高于外国旗杆,一般超出50mm。
3、政府及军队一般用一支国旗旗杆,高度也不能超过30米,一般高度为12米-28.8米。
4、广场旗杆一般高度为18米-29.8米。
5、体育馆旗杆一般高度为9米-15米。
6、酒店旗杆一般高度为12米-19.8米之间,一般用5支,中间为中国国旗,两边为其它国家国旗或酒店自己旗帜。
7、学校旗杆一般采用一支旗杆升中国国旗,高度为12米-15.8米之间。

以上就是关于旗杆高度标准,旗杆一般高多少米的全部内容,以及旗杆标准的相关内容,希望能够帮到您。


还没有内容